Ciepłe, jasne mieszkanie z widokiem, który koi zmysły.
Tylko 700 m od Rynku
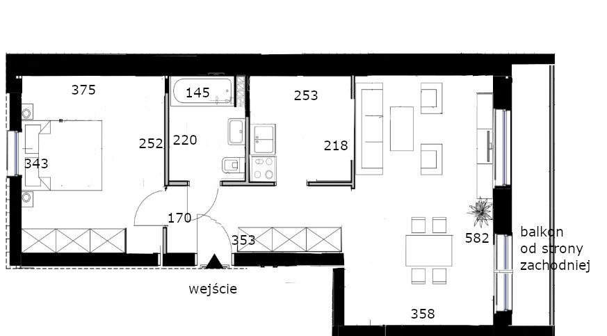
To mieszkanie ma w sobie coś wyjątkowego. Cisza, jakiej trudno szukać w mieście. Zachody słońca podziwiane z dużego balkonu, z którego rozpościera się widok na otwartą przestrzeń i domy jednorodzinne. Żadnych bloków naprzeciwko - tylko spokój, zieleń i przestrzeń.
Lokal znajduje się na 4. piętrze kameralnego budynku - ostatniego na osiedlu, tuż przy szkole. Dzięki temu zyskujesz nie tylko prywatność, ale też wygodę - wszystko, czego potrzebujesz, masz na wyciągnięcie ręki: sklepy, przychodnię, szkołę, a Rynek oddalony jest zaledwie o 700 metrów.
Wnętrze z potencjałem:
• przestronny salon z aneksem kuchennym i wyjściem na balkon - idealne miejsce na poranną kawę lub wieczorny relaks,
• przytulna sypialnia od strony wschodniej - z pierwszymi promieniami słońca,
• funkcjonalna łazienka z wanną,
• przedpokój z zabudowaną szafą - praktyczne miejsce na codzienność.
Mieszkanie jest skrajne, ciepłe i bardzo jasne. Czeka na kogoś, kto nada mu nowe życie i urządzi je po swojemu. To przestrzeń, którą możesz stworzyć od nowa - zgodnie z własnymi marzeniami i stylem.
Niski czynsz (500 zł), przyjazne sąsiedztwo, duży parking przy bloku - to wszystko sprawia, że codzienne życie tutaj będzie po prostu wygodne.
To mieszkanie to coś więcej niż metry kwadratowe - to miejsce, w którym możesz zacząć nowy rozdział.
Powyższy opis ma charakter informacyjny i nie stanowi oferty w rozumieniu przepisów Kodeksu Cywilnego.
Opis oferty zawarty na stronie internetowej sporządzany jest na podstawie oględzin. nieruchomości oraz informacji uzyskanych od właściciela, może podlegać aktualizacji i nie stanowi oferty określonej w art. 66 i następnych K.C.
Z widokiem na zachód.
lokalizacja: Żory, Osiedle 700-lecia Żor
291 000,00 PLN
6 191,49 PLN
Dane szczegółowe
- Typ transakcji: sprzedaż
- Typ nieruchomości: Mieszkanie
- Lokalizacja: Żory, Osiedle 700-lecia Żor
- Powierzchnia:47 m2
- Liczba pokoi: 2
- Piętro: 4 z 4
- Numer oferty: 624588
- Cena: 291 000,00 PLN
- Cena za m2: 6 191,49 PLN
Opis nieruchomości
Film o nieruchomości
Kontakt do opiekuna:
Expert Partner Sp. z o.o.